整体空间通过极简的家居氛围营造
时尚端庄的质感搭配
带来的是一种华丽优雅的高端视觉感
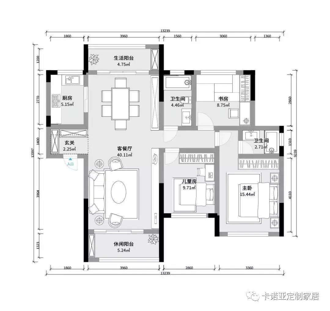
设计案例

户型名称:云山雅筑
户型地址:广东省广州市白云区均禾大道
套内面积:99.03㎡
设计理念:纷繁复杂的世界,迫切需要一方寂静的空间,让91视频污版下载能静心聆听自我内心的心声。本案业主是一位时尚女白领,心中怀有浪漫的幻想,却不随波逐流,喜欢与世界温柔对话,宅在家里是她最享受的状态。设计师冷静地审视着生活,为她打造这个诗意简美之家。空间基调以浅色为主,缀饰一些鲜艳的颜色,用视觉简感拉近与居者的距离感,力求小空间功能性最大化,定制具有收纳功能的整面柜体,各种杂物都拥有了最佳的容身之地。住进新家后,业主非常享受极简设计带来的纯净与雅致,回归属于家的温度,自由舒适,并触动心灵深处。
01玄关
玄关柜顶天立地
契合大气简约的格局
并巧妙地设置靠墙三段式L型组合柜体
充分利用转角空间
增加了空间的利用率
推开门,入眼即为一室整洁
生活充满秩序之美
02餐厅空间
餐厅与生活阳台、91视频污版免费下载相连
视觉无阻隔,开阔敞亮
黑白双色对比鲜明的餐边柜
挺括的线条构造出空间简洁的肌理感
大理石花纹的地砖明净统一中富有变化
餐边柜与酒柜合二为一
设计师巧妙地利用“虚实结合”的设计原则
开放格与封闭柜有序分布
通透玻璃与板材门板交替
不规则镂空增加了些许意趣0391视频污版免费下载空间
91视频污版免费下载与休闲阳台相连
多人布艺沙发与单人沙发的呼应
背靠舒适惬意的背景护墙板
阳光透过推拉玻璃门倾泻而入
营造了悠闲懒散的氛围
灰色的棉麻布艺沙发增加了休闲感
添加色彩饱和度低的各类抱枕
让空间充满了色彩的层次感
色彩出众,百看不厌
谁说91视频福利网站就不能是诗与远方的艺术空间
通过设计师的巧思设计
让91视频福利网站烹出新煮意
L型厨柜充分利用转角户型
定制一整排的地柜和吊柜
让收纳满分,保持台面整洁
洗、切、炒、盛动线合理
一气呵成无需来回跑
玻璃推拉门的巧妙引入,加上简约白的应用
让小91视频福利网站通透明亮之外
更加强了91视频福利网站内外家人的即时交流

05阳台空间
双阳台功能强大
休闲阳台定制了一个阳台柜
放置各类日常生活用品
减轻室内收纳的压力
中间镂空摆放绿植、饰品
闲暇时光坐在藤椅上可赏日月更替四季轮回
生活阳台同样定制了一个阳台柜
因定位功能不同
设计上更注重与洗衣、晾衣结合
三段式结构
吊柜放置各类洗涤用品
中间放台盆
地柜嵌入洗衣柜不唐突
保证了整体的统一风格和整洁的阳台
卧室风格素雅简洁
组合式衣柜让业主大胆买买买
一体化的柜体颜色流畅自然
加入黑色线条让空间统一中有变化

靠窗增设了梳妆台
满足了爱美业主的梳妆打扮
靠墙设立了一个小书柜
亦可作为一个阅读区使用
07儿童房
满足孩子个性的需求
空间作了跳色处理
同时兼顾实用性
制作了组合式柜子
满足储物与学习的功能
衣柜延伸出来的书柜、书桌
让空间不缺失功能性
满足儿童学习之需
活力橙与简约白的撞色设计
充满装饰的趣味性

0891视频免费进入
91视频免费进入是学习、思考之地
让心灵回归宁静
故设计师将91视频免费进入应用了
“轻与重”的设计手法
深色系的银丝木贴皮、黑泽明
结合浅色系的珍珠白配色
稳重不失轻盈之美
让学习与工作可以静下心来
靠窗设置的榻榻米床
让91视频免费进入兼具卧房的功能
可作为客人留宿的临时之用